





咨詢熱線:15537323577 DS型連續斗式輸送機是在吸引西德先進技術的基礎上,自行改進設計的90年代新型輸送設備。適用于水平或傾斜輸送各種粉狀散料。如水泥熟料、鐵鐵渣、石灰,焦炭等。其耐溫性和性優于鱗板式輸送機、皮帶輸送機和振動輸送機等,并省電50%以上??梢栽诮ú?、冶金、煤炭 、化工、電力等部門推廣應用。
DS型連續斗式輸送機輸送鏈為套筒滾子鏈,連續斗式結構,用于高溫熟料的水平、大傾角(可達60度)輸送;輸送帶是由牽引鏈、承載鏈和正向搭接(或反向搭接)的料斗組成,三部分可自由裝卸;牽引鏈與承載鏈分開,使結構簡化,成本降低,且使用壽命長,安裝維修方便;承載鏈中的行走輪為承重件,以滾動摩擦代替以往采用的滑動摩擦,運行阻力降低55%-65%,大大降低了輸送機的牽引力和功率消耗;承載體系料斗結構,比鋼板(鱗板)糟體結構更有剛性強、承載量大,安裝維修方便等優點;裝料和卸料部分設有密封和除塵口,改善了裝卸料的工作環境;布置靈活;耐高溫??奢斔蜏囟?lt;600c的物料;傾角大。*大傾角可達60度。
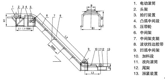
DS型連續斗式輸送機的特點:
1.適用范圍廣。對一般輸送設備難以正常輸送的高溫、大塊度、磨琢性強,具有鋒利棱角的物料的輸送具有獨特優勢。
2.輸送能耗低,承載鏈是的行走輪為重件,以滾動輪摩擦代替以往采用的滑動摩擦,運行阻力降低55%-65%,大大降低也輸送機牽引力和功率消耗。
3.牽引鏈與承載鏈分開,使結構簡化,成本降低,且使用壽命長,安裝維修方便。
4.承載體系料斗結構。比鋼板槽體結構更具有鋼性強,承載量大安裝維修方便等優點。
5.布置靈活,傾度大,大傾角可達60度。
| 型號 | 斜料邊高(mm) | 輸送速度(m/s) | 輸送量(傾角<25度)(m3/h) |
| DS400 | 160 | 0.15-0.30 | 29-59 |
| DS450 | 160 | 0.15-0.30 | 40-80 |
| DS640 | 200 | 0.15-0.30 | 59-119 |
| 250 | 0.15-0.30 | 74-149 | |
| DS800 | 250 | 0.15-0.30 | 93-197 |
| 300 | 0.18-0.30 | 112-225 | |
| DS1000 | 300 | 0.15-0.30 | 140-281 |
| 350 | 0.15-0.30 | 164-329 | |
| DS1200 | 350 | 0.15-0.30 | 197-395 |
| DS1400 | 350 | 0.15-0.30 | 230-460 |
| DS1600 | 350 | 0.15-0.30 | 263-526 |
本機在有傾斜度(>25°)時的輸送能力調整系數(K)
| 斜料邊高(mm) | 調整系數(K) | ||||||
| 30° | 35 ° | 40° | 45° | 50° | 55° | 66° | |
| 160 | 0.88 | 0.8 | 0.69 | 0.6 | 0.5 | 0.43 | 0.37 |
| 200 | 0.91 | 0.83 | 0.75 | 0.69 | 0.61 | 0.54 | 0.47 |
| 250 | 0.93 | 0.86 | 0.8 | 0.74 | 0.69 | 0.63 | 0.57 |





企業實力
strength獲取優惠價格
Order now
電話:朱經理:15537323577
電話:耿經理:18937392234
總機:0373-2060005
郵箱:272700153@qq.com
地址:河南新鄉牧野區環宇大道周村北園區160號新斯曼機械 (商砼站對面往西200米)

豫公網安備 41071102000513號
返回頂部
在線咨詢
掃一掃 關注我們